当前位置: 首页 > 产品大全 > 室内装饰工程深化设计之石材探秘 构筑建筑装饰装修的精髓

室内装饰工程深化设计之石材探秘 构筑建筑装饰装修的精髓

室内装饰工程深化设计之石材探秘 构筑建筑装饰装修的精髓

在建筑装饰装修建设工程中,深化设计是连接创意构想与落地施工的关键桥梁。而石材,作为其中历史悠久、质感非凡的核心材料,其科学、艺术与技术的深度融合,直接决定着最终工程的品质与格调。本文将深入探秘室内装饰深化设计中石材应用的奥秘,揭示其从设计到施工的全过程精髓。

一、深化设计:石材应用的“导航图”

深化设计阶段,石材已不再仅仅是效果图上的色块与纹理。它要求设计师与工程师协同,将天马行空的概念转化为可执行、可安装的详细方案。这包括:

  1. 精准选材与排版:依据设计风格、空间功能及预算,科学选择大理石、花岗岩、石灰华等品类。通过电脑排版(CAD、BIM),模拟石材大板在墙面、地面的铺贴效果,最大化利用材料,减少浪费,并巧妙规避天然石材固有的色差、纹理不连贯等缺陷,实现“化瑕为瑜”。
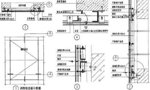
  2. 节点构造设计:这是深化设计的核心。需详细绘制石材的干挂、湿贴、胶粘等不同安装方式的节点大样图。例如,墙面干挂需明确龙骨体系、挂件形式、石材开槽或背栓位置;地面铺贴需确定基层处理、粘结层厚度、留缝与填缝工艺。每一个细节都关乎结构的稳定性与使用的耐久性。
  3. 与其他专业的协同:石材设计必须与机电(预留检修口、风口)、灯光(考虑石材对光线的反射与吸收)、给排水(如浴室石材的防滑与坡度)等专业图纸无缝对接,避免施工中的“打架”现象。

二、石材探秘:材料的科学与美学

深化设计离不开对材料本身的深刻理解。

  • 物理与化学特性:不同石材的硬度、密度、吸水率、耐磨度、耐酸碱性能差异巨大。例如,人流密集的大堂地面应选用耐磨度高、结构致密的花岗岩;而装饰性墙面则可选用纹理华丽但相对娇贵的大理石,并需进行必要的防护处理。
  • 纹理与色彩的驾驭:天然石材的纹理是自然的馈赠,也是设计的挑战。深化设计时,需根据空间轴线、视觉焦点进行“追纹”或“拼花”设计,使纹理的流动具有逻辑性和艺术性,创造出独特的空间韵律。
  • 表面工艺的多样性:抛光面、亚光面、火烧面、荔枝面、仿古面……不同的表面处理工艺赋予石材截然不同的质感与表情,深化设计需明确指定,以精准实现设计意图的光影与触感效果。

三、从设计到施工:落地实施的精准控制

深化图纸是指令,施工是实现。这一转化过程要求极高的精准度。

  1. 工厂化加工:基于深化图纸生成的精准加工单,石材在工厂进行切割、磨边、开槽、倒角、异形加工甚至预拼装。这大大提高了精度和质量稳定性,减少了现场作业的不可控因素。
  2. 现场测量与放线:在基层处理完成后,必须进行高精度的现场二次测量和放线,将图纸上的控制线弹设到实际空间,作为所有石材安装的基准,确保对缝整齐、标高一致。
  3. 安装工艺的严格执行:施工团队必须严格按照深化节点图施工。无论是干挂系统的焊接强度、防腐处理,还是湿贴砂浆的饱满度、养护时间,任何一个环节的疏忽都可能导致空鼓、脱落、返碱等质量通病。
  4. 成品保护与后期养护:安装完成后的保护至关重要,防止后续工序造成污染和划伤。工程交付前,还需进行专业的清洗、防护剂涂刷等养护作业,以延长石材寿命,保持最佳状态。

###

室内装饰工程中的石材深化设计与施工,是一场理性与感性交织、科技与艺术共舞的精密实践。它要求从业者不仅要有敏锐的美学嗅觉,更要具备扎实的材料学知识、严谨的工程思维和卓越的协同管理能力。唯有将“设计之思”通过“深化之笔”和“施工之手”完美贯彻,才能让每一块冰冷的石头,在建筑空间中焕发出温润而永恒的生命力,最终成就经得起时间考验的装饰艺术精品。

更新时间:2026-04-22 19:55:18

如若转载,请注明出处:http://www.sh-nuotai.com/product/79.html